A small group of concerned neighbors attended a formal community meeting on August 18 to learn about the proposed mixed-use development at Westford Glen.
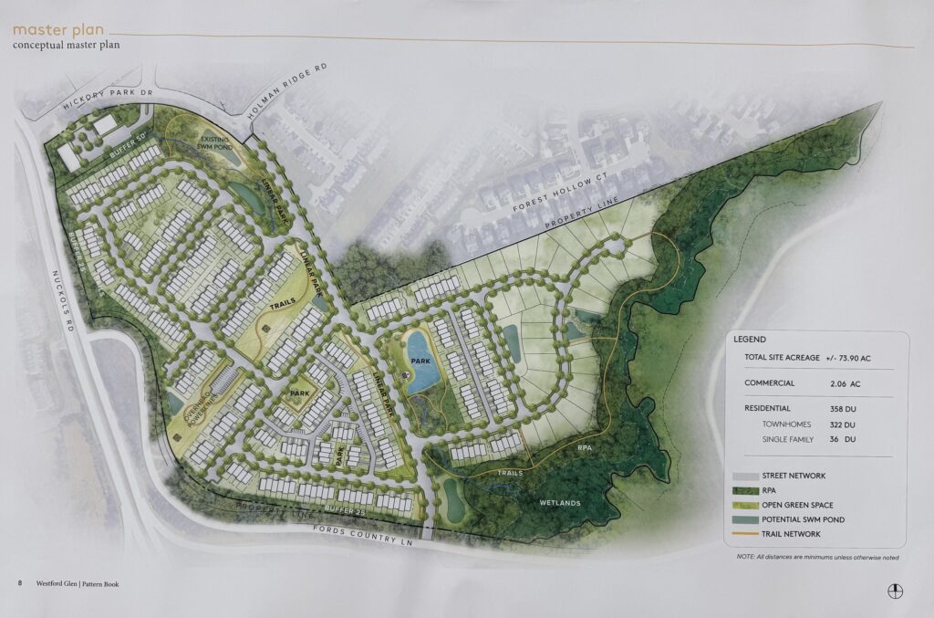
The proposed development includes a “neighborhood business” commercial area closest to the intersection of Nuckols Road and Hickory Park Drive. It would include townhomes, single family homes, and recreational areas. Hickory Park Drive will be extended through the new development to Fords Country Lane. The current proposal includes 358 homes (primarily townhomes with a smaller number of single family homes.)

The intersection at Fords Country Lane would become a “full movement intersection,” meaning that people will be able to take a left turn in from Nuckols Road, but not a left turn out. It also means traffic accessing the Springfield Road Public Use Area (landfill) will go through the new development to the intersection at Hickory Park Drive so drivers can turn left. Nuckols Road heading north (from I-295 towards Twin Hickory) would be extended from two lanes to three lanes between Fords Country Lane and Hickory Park Drive.
The community meeting attendees primarily raised concerns about the impact on traffic and crowded schools along Nuckols. Data regarding anticipated impact on school enrollment is expected by two weeks before the next planning commission meeting, but residents pointed out that “typical” townhouse residence assumptions used by developers (mainly empty nesters, singles, and very young families) would underestimate the large number of school-age children living in our town-home communities.
The Henrico County process for the evaluation of new developments is transparent and open to the local community. In the case of this development, an informal community meeting was held by the developer on 6/5 and a formal community meeting was held on 8/18.
The Henrico County Planning Commission will meet on October 9 and the Board of Supervisors will meet on November 11. Both of those sessions will take place at the County Government Center at 4301 E. Parham Road at 6PM. They are open to the public, so if you have questions or concerns you still have time to learn more about the process and share your voice.
Should rezoning proposal #REZ-2025-101126 be approved, the timeline is:
- First home to last home constructed (1-8 years, 2027-2035)
- Plan review and approval (8-12 months, 2026)
- Buildable lots created (6-8 months, 2027)
Take Action
- Share this article with a friend who lives near the Nuckols Road and I-295 Interchange – they may not know about this proposed rezoning.
- If you have questions or concerns, make a plan to attend the Planning commission meeting on October 9 and the Board of Supervisors meeting on November 11.




